- 质量稳定:实行全过程质量监控,细致入微,全方位检测!
- 价格合理:高效内部成本控制,减少了开支,让利于客户!
- 交货快捷:先进生产流水线,充足的备货,缩短了交货期!
- 销售:022-85190966-1
- 传真:022-24919002
- 技术:022-85190966-5
产品概述:
500X持压泄压阀由主阀、泄压/持压导阀针阀、球阀、微形过滤器和压力表组成水力控制接管系统。利用水力自动操作,即可以作泄压阀用又可作持压阀用。作泄压阀用时,可维持供水路压力在设定的安全值之下;做持压阀用,可维持主阀上游水压在设定值之上,保持主阀上游供水压力。500X持压泄压阀利用水力自力控制,不需要其它装置和能源,保养简便,一阀多用。本系列500X持压泄压阀产品广泛用于高层建筑、生活区等供水管网系统及城市供水工程。500X持压泄压阀王要用于消防或其他供水系统中,以防止系统超压或维持消防供水系统的压力。消防泵关闭后还可以减小水锤的冲击。也用于大型供水系统的水锤消除装置.并且阀门控制系统的进口处装有一个自清洁滤网,利用流体特性,使比重较大、直径较大的悬浮颗粒不会进入控制系统.确保系统循环畅通无阻,使阀门能安全可靠地运行。系统动作平稳、强度高、使用寿命长适用于600口径以下的管道。
工作原理:
(1)、作泄压阀:当泄压/持压导阀调整为泄压状态时,水通过针阀、主阀控制室、球阀A、泄压/持压导阀、球阀B流向出口,此时主阀处于开启状态。当进口压力超过泄压/持压导阀设定的安全值时,泄压导阀会自动开启,通过球阀C放出部分水,使管路泄压。当压力恢复到安全值时,泄压阀自动关闭。作泄压阀时,各球阀常开。 (2)、作持压阀:当泄压/持压导阀调整为持压状态时,只要主阀进口水压低于导阀设定值,导阀即关闭。主要控制室升压,主阀关闭。当主阀上游供水压力超过导阀设定压力时,持压导阀才能打开,控制室的水经球阀排至出口,控制室降压主阀开启,开始供水,即保持了上游水压。作持压阀用时,球阀C常闭或用丝堵换下。
技术参数:
|
公称压(Mpa) |
壳体试验压力(MPa) |
密封试验压力(MPa) |
适用介质 |
介质温度(℃) |
|
1.0 |
1.5 |
1.1 |
水 |
0-80 |
|
1.6 |
2.4 |
1.76 |
||
|
2.5 |
3.75 |
2.75 |
零部件材料:
|
零件名称 |
零件材料 |
|
阀体 阀盖 |
WCB |
|
阀座 阀盘 |
铜合金 |
|
密封圈 O型圈 |
丁腈橡胶 |
|
阀杆 |
2Cr13 |
|
弹簧 |
50CrVA |
|
针型阀 |
铜合金 |
|
球阀 |
铜合金 |
|
泄压/持压导阀 |
铜合金 |
|
微型过滤器 |
不锈钢 |
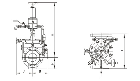
结构图:

主要连接尺寸(PN 1.0-2.5MPa):
|
公称通径DN |
L |
H |
H1 |
A |
B |
|
50 |
250 |
505 |
90 |
170 |
170 |
|
65 |
280 |
520 |
98 |
180 |
180 |
|
80 |
310 |
535 |
110 |
190 |
190 |
|
100 |
350 |
555 |
120 |
200 |
200 |
|
125 |
400 |
590 |
145 |
215 |
215 |
|
150 |
450 |
645 |
155 |
230 |
230 |
|
200 |
550 |
715 |
190 |
255 |
255 |
|
250 |
650 |
780 |
250 |
295 |
295 |
|
300 |
800 |
880 |
290 |
325 |
325 |
|
350 |
900 |
940 |
330 |
380 |
380 |
|
400 |
1000 |
1000 |
360 |
415 |
415 |
|
450 |
1000 |
1030 |
445 |
435 |
435 |
|
500 |
1100 |
1060 |
495 |
460 |
460 |
|
600 |
1100 |
1150 |
550 |
520 |
520 |
安装示意图:

【水利控制阀】就是水压控制的阀门_水力控制阀由一个主阀及其附设的导管﹑导阀﹑针型阀﹑球阀和压力表等组成。根据使用目的﹑功能及场所的不同可演变成遥控浮球阀﹑减压阀﹑缓闭止回阀﹑流量控制阀﹑泄压阀﹑水力电动控制阀、水泵控制阀、压差旁通阀、紧急关闭阀。
声明:本文中所有文字、数据、图片考虑到生产工况条件不同,难免会产生偏差、不恰当或是有不充分的描述,故均适用于参考,如果您对本文中所提供的500X持压泄压阀产品内容有任何疑问,请您联系我们,我们将竭诚为您服务!






